Details

Call 01344 876666 to request a viewing

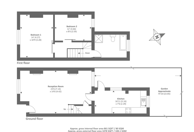
DESBOROUGH PARK, THE CROFT, MAIDENHEAD, BERKSHIRE, SL6 4BA

Guide Price £430,000 : SSTC

Description
An attractive two-bedroom end-of-terrace cottage situated in a cul-de-sac within a short walk of local shops, schools and within easy reach of Maidenhead town centre and Crossrail station. The property comprises two double bedrooms, open plan reception and dining room, open fireplace, stunning bathroom featuring a beautiful freestanding bath with separate shower. Permitted Parking.
Bedrooms

2

bedrooms

Receptions

1

reception

Bathrooms

1

bathroom

Features
  • Period end of terrace home
  • Cul-de-sac location
  • 2 double bedrooms
  • Open plan living/dining room
  • Modern kitchen
  • Bathroom with separate shower
  • Short walk of local shops and park
  • Chain free
  • Refurbished, including new roof 2018
Request a Viewing

Call 01344 876666 or complete the following form:




    NOTE: These particulars are intended only as a guide to prospective Purchaser/Tenants to enable them to decide whether to make further enquiries with a view to taking up negotiations but they are otherwise not intended to be relied upon in any way for any purpose whatsoever and accordingly neither their accuracy nor the continued availability of the property is in any way guaranteed and they are furnished on the express understanding that neither the Agents nor the Vendors are to be or become under any liability or claim in respect of their contents. Any prospective Purchaser/Tenant must satisfy himself by inspection or otherwise as to the correctness of the particulars contained.