Details

Call 01344 876666 to request a viewing

Alderson Court, Locks Ride, Ascot, Berks, SL5 8FT

£1,250,000 : Available

Description
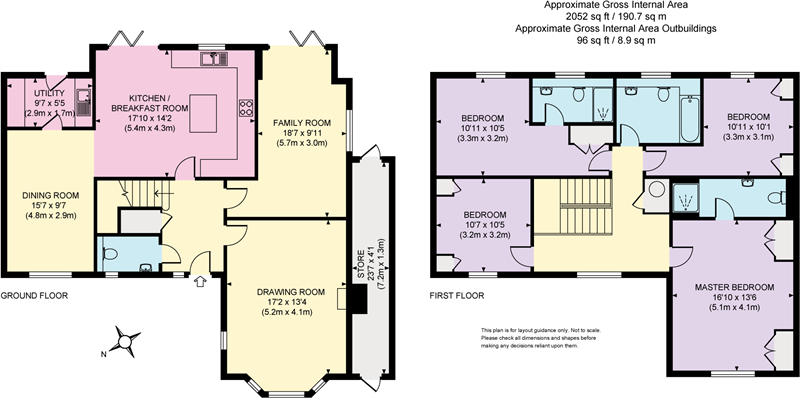
A most attractive well proportioned Four Bedroom, Three Bathroom detached family size home on this favoured road close to Mill Ride Golf Course. Situated on the edge of Ascot with excellent access to a good range of both state and private schools plus Road and Rail connections.

Directions:
From the Heatherwood Hospital roundabout take the A329 towards Bracknell. At the second set of traffic lights turn right into Priory Road, continue to the top and the road becomes Locks Ride. Alderson Court will be found past Chavey Down Road on the right hand side
Bedrooms

4

bedrooms

Receptions

3

receptions

Bathrooms

3

bathrooms

Features
  • Modern well presented detached Family size home
  • Four Bedrooms, with two en-suites
  • Modern light re-fitted Kitchen/breakfast Room with island
  • Open Plan Family Room and separate Utility Room
  • Separate Dining Room and Family Room
  • Large Sitting Room with fireplace
  • Driveway with ample parking
  • Mainly walled rear garden with wide patio
  • Excellent road and rail connections
  • Superb choice of local schools
Request a Viewing

Call 01344 876666 or complete the following form:




    NOTE: These particulars are intended only as a guide to prospective Purchaser/Tenants to enable them to decide whether to make further enquiries with a view to taking up negotiations but they are otherwise not intended to be relied upon in any way for any purpose whatsoever and accordingly neither their accuracy nor the continued availability of the property is in any way guaranteed and they are furnished on the express understanding that neither the Agents nor the Vendors are to be or become under any liability or claim in respect of their contents. Any prospective Purchaser/Tenant must satisfy himself by inspection or otherwise as to the correctness of the particulars contained.